北京獵雕偉業起重設備有限公司歡迎您!獵雕起重專業生產手動/電動龍門吊,升降/移動龍門吊,鋁合金龍門吊,懸臂吊,自立式起重機,組合式KBK起重機,模組KBK軌道等輕小型起重產品。
電動有軌移動龍門吊
描述: 獵雕電動有軌移動龍門吊詳細參數頁面。
關鍵字:電動有軌移動龍門吊
|
型號 |
PT3 |
加工定制 |
是 |
型號 |
PT3 |
|
品牌 |
獵雕 |
型號 |
PT3 |
類型 |
電動有軌移動龍門吊 |
|
操作形式 |
電動無軌行走 可電動升降 |
結構形式 |
門架式 |
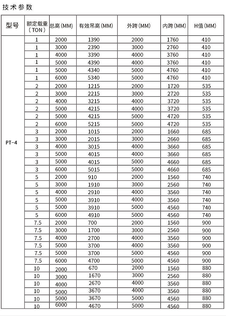
跨度 |
定制(米) |
|
懸臂長度 |
定制(米) |
有效起升高度 |
定制(米) |
額定起重量 |
定制(噸) |
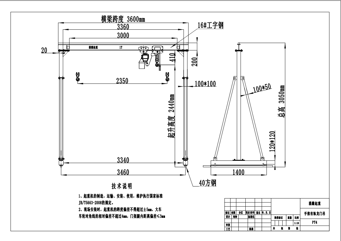
產品名稱:電動有軌移動龍門吊
電動有軌移動龍門吊產品特點:
1、起重量大,可在室內或室外進行鋪設軌道;
2、可沿軌道進行行走,無需擔心出現移動路線上的偏差;
3、電動驅動,無需人力進行推動移動。


提示:以上參數僅供參考,具體參數數值還需根據客戶實際應用情況定制。
如果您有訂購的需求,可以聯系我們咨詢。
聯系電話:15531107201 18519861704(同微信)